Suivez les messages hebdomadaires ici chaque semaine. Important de validez les messages avant de vous déplacer en cas de changement imprévu. Assurez-vous également que votre compte Cadet365 est actif et fonctionnel, certaines informations (ex. confirmation de liste d'inscription à une activité) ne seront disponibles que via Teams.
Messages de la semaine
Vendredi 6 février
Soirée spéciale aérospatial
- Heures : 18:45 à 21:15
- Lieu : Polyvalente de L'Ancienne-Lorette - Porte 7
- Tenue : C5
- Important à apporter : Bouteille d'eau, souliers d'intérieur.
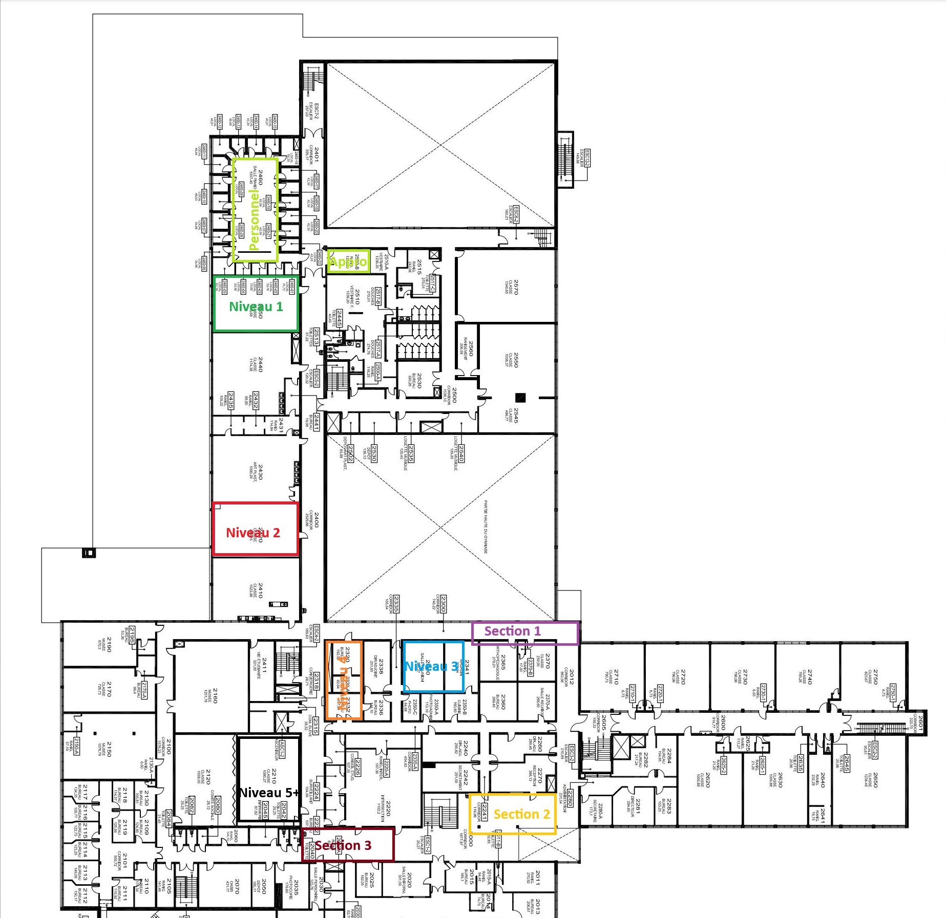
- Autre : Les présences seront désormais prises par section. À votre arrivée, veuillez déposer vos effets personnels dans votre local de niveau et vous diriger vers le point de rassemblement de votre section. Voir plan de l'école.
Musique du 921
Si tu es un cadet intéressé par la musique, que tu saches jouer d’un instrument ou non, prends quelques minutes pour remplir ce formulaire afin que l’Escadron puisse faire revivre sa propre musique.
Administration
Journée thématique Entraînement
Afin d'améliorer la journée, nous aimerions la rétroaction des niveaux 4 et plus (que vous ayez participé ou non) en répondant à ce sondage.
Validation annuelle
Tous les parents, tuteurs des cadets de l'an dernier doivent rencontrer l'officier d'administration afin d'effectuer la validation annuelle de leur(s) jeune(s); l'absence de cette validation pourrait empêcher un cadet de participer à certaines activités. Certains ont reçu le document le 5 décembre, svp le rapporter complété vendredi ou par courriel.
Approvisionnement
- Les cadets ayant reçu une promotion lors de la dernière parade, svp nous retourner les épaulettes (flap) de votre ancien grade. Vous pouvez conserver les badges.
- Voir l'Annexe F de l'instruction de la tenue des cadets de l'air pour l'emplacement des badges
- Faute d'inventaire, l'habillement ne sera pas ouvert pour les prochaines semaines, jusqu'à ce que nous puissions recevoir de nouvelles commandes. Un formulaire sera bientôt disponible via les commandants de section pour ceux devant faire des échanges de pièces d'uniforme.
Loterie « Pilote d'un jour 2026 » - Fin de la campagne de ventes individuelles
ATTENTION : La date limite pour rapporter tous les billets était le 30 JANVIER 2026.
Tous les cadets qui ne l’ont pas déjà fait doivent obligatoirement rapporter ce vendredi TOUS les billets (vendus et non-vendus) et l'argent de ces ventes.
NOTE : Cette obligation ne s’applique pas aux cadets qui ont demandé et reçu des carnets en extra vendredi dernier, pour effectuer un blitz de fin de campagne.
Comité répondant
Contenant consignés
- Nous invitons chaque cadet à apporter avec eux des contenants consignés (canettes, bouteilles d’eau, de jus, etc.) lors des rencontres du vendredi soir, à leur arrivée. Cette initiative vise à ajouter des fonds supplémentaires à la campagne de financement afin de soutenir vos activités.
- Un parent sera présent chaque vendredi pour récupérer les contenants. Plus vous apporterez de contenants consignés, plus vous aurez d’argent pour vos activités.
Activités optionnelles
- Art oratoire - congé cette semaine
- Biathlon - à venir
- Musique - lundi 2 février
- Heures : 18h30 à 20h30
- Lieu : Complexe militaire, salles de classe au 2e étage - 835, boul. Pierre-Bertrand, Québec
- Tenue : civil confortable
- Important à apporter : bouteille d'eau, papier, crayon, efface et surligneur, instrument, partitions
- Autre : Les nouveaux sont les bienvenus!
- Pilotage - mardi 3 février ET jeudi 5 février
- Heures : 18h30 à 21h00
- Lieu : Polyvalente de L'Ancienne-Lorette - local 2330
- Autre : Pour les candidats aux cours de pilotage cet été seulement
- Tir de précision - samedi 7 février
- Heures : 8h30 à 16h00
- Lieu : CC115 - Camp des cadets de Valcartier - Voir carte
- Tenue : civil confortable
- Important à apporter : bouteille d'eau, collations.
- Autre : Une situation particulière nous empêche d'utiliser notre champ de tir habituel. Favoriser le co-voiturage. La sécurité pour entrer sur la base est resserrée de plus en plus. Les agents à l'entrée demande des cartes d'identité au chauffeur et demande à quel endroit vous allez.
- Autre : La sélection de l'équipe est commencée, seuls les cadets confirmés par l'entraîneur sont invités à continuer les pratiques. Consulter sur Teams le canal 4.4 Tir pour la liste et informations.
Activités à venir
- 14 février - Festival des neiges de L'Ancienne-Lorette
- 20 février - Soirée spéciale préparation d'uniforme
- 27 février - Parade du commandant
- 28 février - Jeux des Cadets
- 6 mars - Congé de la Relâche scolaire
